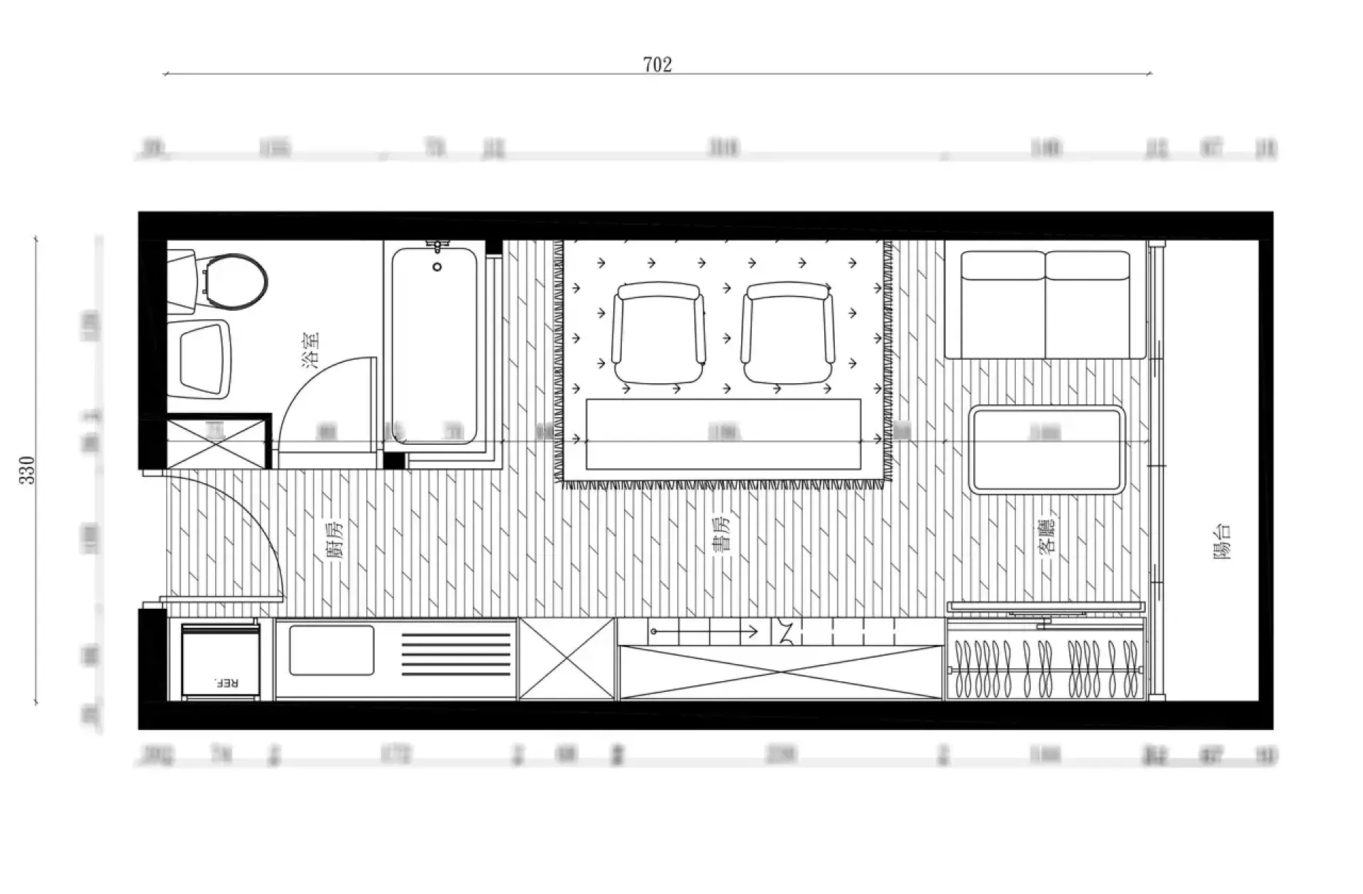
可融合、收納、隱藏的特製家具設計,不同時間、不同情境下,彈性變動、複合式的空間運用,重新安排的衛浴設計,讓整體空間動線簡潔、俐落。7坪大的小套房,可以擁有包含浴缸、可泡澡的全套衛浴設備,有工作的書房,休息、娛樂、朋友來訪聊天聚會的客廳,有可以下廚煮飯的廚房,大容量的衣櫥,以及標準大小的雙人床舖。
依據使用時間長短、使用模式,分配空間
在思索各種功能需求時,要先清楚需求的先後,以及各個空間使用的時機、時間長度和使用方式,以此來決定如何區隔空間及動線。
臥室除了睡覺以外,平常不太會在臥室作息起居,貓房、廚房、樓梯,使用的時間少、又很佔據空間,空間中最重要、平日使用時數最長的是工作、娛樂使用的書房,以及休閒時使用的客廳。
書房、客廳安排在靠窗、較開闊的空間,並擁有最佳的室外光線和視野。臥房、貓房安排在二樓夾層,需要的時候透過可收納的樓梯上樓使用。廚房與走道合併,並藉由可收納的隱藏傢俱擴充下廚時的檯面空間。
小空間創造大視野,讓空間看起來開闊舒適
在空間中創造最長的視覺動線,並藉由落地窗引入室外空間,創造視覺開闊感受。
從入口可以直接看到落地窗,一進門就可以看到窗外的景色,視覺的長度使的空間看起來不會狹小。書房位置是挑高的空間,不只客廳引入室外光線,二樓臥室光線也會透過摟空的空間灑落,如此空間就不會有低矮、壓抑的感受,室內空間中的光線、空氣都自然的與室外交融在一起。
橫跨一樓、二樓的3D透視圖,可以看到人、空間以及傢俱的相對大小和視覺比例
浴室、浴缸的牆面使用玻璃,書房的側邊擁有通透的視覺效果,而不是死硬、聳立的牆面。泡澡、休息充電的時間也可以透過玻璃直接看到窗外的景緻,不只擁有開闊的視覺效果,也保有足夠的隱私。
複合用途,可折疊、收納的傢俱設備
折疊變化的傢俱設備,為空間、家電設備賦予多重用途
在這個空間中,我們創造了三個特製的複合式傢俱設備。隱藏式的廚房IH爐,可收納的樓梯,以及可移動、變化用途的電視。
電視懸掛在特制的軌道上,除了在客廳使用以外,還可以移動到書房,視訊會議或遊戲都有大螢幕可以使用,拉到廚房、翻轉拉出後,廚房下廚時可以不只可以看電視,也可以看食譜、教學。

一般建築的樓梯空間,就只能是純粹的通道空間,除了上下樓的時間以外,都是閒置空間。這個設計中通往二樓臥房、貓防的樓梯,是有扶手、踏接的樓梯,平常收推進收納櫃內,整合成收納牆面、不佔空間,需要上樓時再拉出。
IH爐平常收納在廚房櫃內,不佔空間,要下廚時將櫥櫃展開,就有爐子可以用,底下櫃子可以擺放各種調味料,方便使用。展開的IH爐,可以增添廚房的檯面空間,更方便使用。
我在的地方,是最重要的空間
空間架構、動線規劃,室內設計中最重要的,永遠是空間中的人
一個人的小窩,空間中只有一個人,那這個人所在的空間,使用的時間,都會是最重要的。彈性配置的空間、傢俱,需要思考會不會互相干擾、造成使用上的阻礙。
當人在二樓時,樓梯會是很重要的裝置,會拉出來、保留在走道上,這個時候一樓是閒置的,並不會造成一樓使用的困擾。
從二樓往下看的3D透視圖,可以看到臥房、貓房,以及樓梯展開的樣子
當人在廚房煮飯時,走道就會是廚房空間,拉出來的IH爐成為L型廚房工作檯面;這時間不需要走道、客廳、書房,讓廚房變得更大、又不會阻礙其他地方的使用。
當人在書房、客廳時,收起的樓梯、廚房收納櫃,讓空間開闊、走道暢通。可移動的電視牆,除了能讓電視牆後的大容量衣櫥完全展開以外,一樓的各個位置,客廳、書房、廚房以及浴室浴缸,都可以使用電視。