案例故事

來看看我們做過得案子,以及每一個案件中的故事

images/project/2020/MaiPhone/MaiPhone.webp
明確好找的店面,醒目有趣的外觀幫助拓展業績。恰當的動線、柔和的色彩,引導客戶舒緩焦躁情緒,提高服務滿意度、減少客訴。並確保工作人員、客戶都有安穩舒適的工作與休息區域。
綈渼時尚美髮沙龍室內
在洽談過程我們發現業主創業預算中忽略了營運週轉金,初時主動要求設計師Tina降低裝潢預算分配,並共同找出最重要的項目,讓開業夢想能順利實現。恭喜綈渼時尚美髮沙龍在2021年10月開幕了,設計師Tina多年以來的心願終於開花結果,初時與您一起實現人生的夢想。
台北捷運復興崗站機廠內的捷運北投會館-逃生體驗營大廳 裝修施工現場
2020年末捷運北投會館的逃生體驗營增設了動態模擬駕駛、萬詢問處以及滅火器操作互動體驗。由十三行互動設計公司規劃、設計,初時樂趣承接室內裝修工程施做。
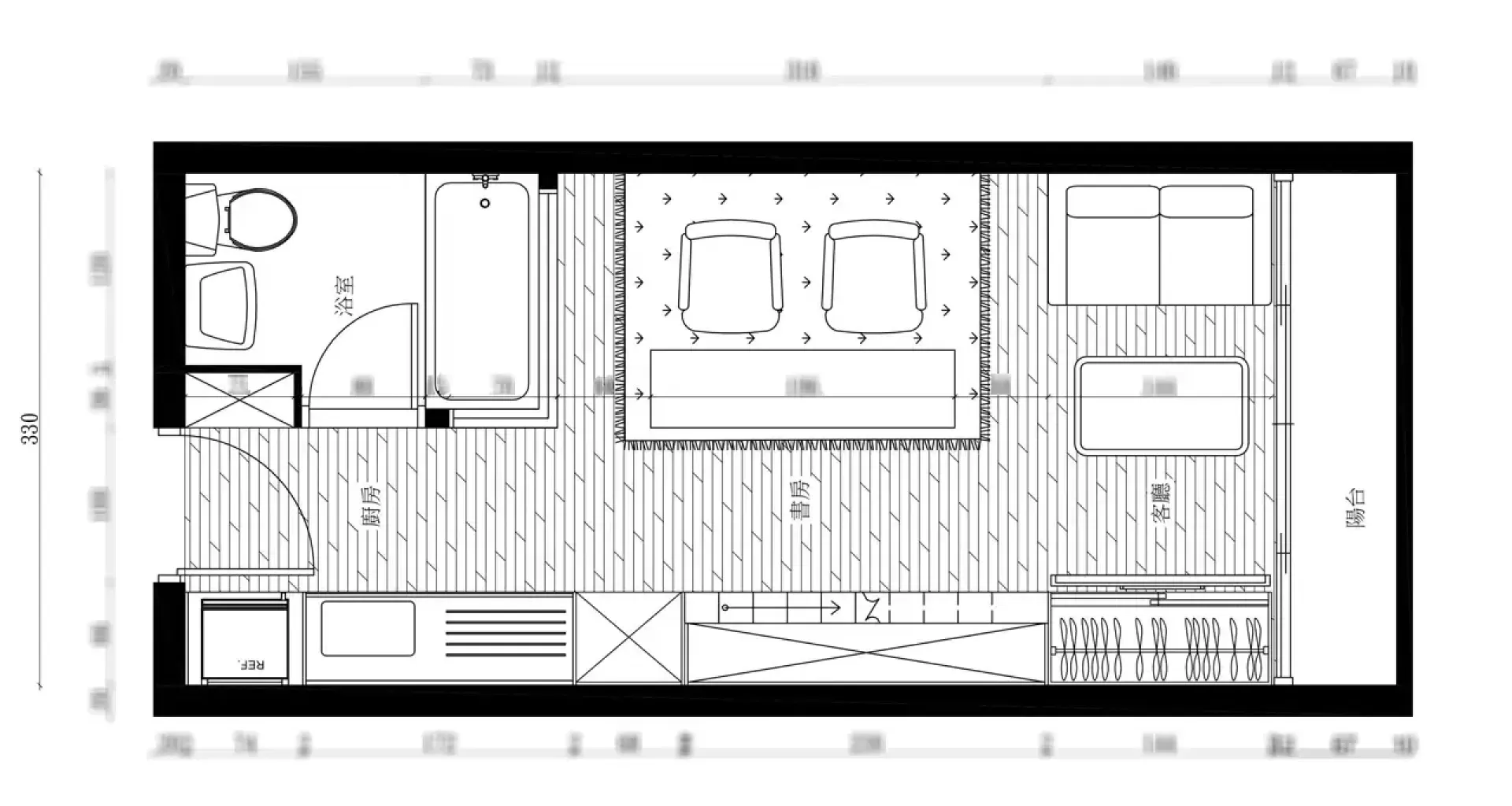
單身貴族私密小窩 室內設計一樓平面圖
可融合、收納、隱藏的特製家具設計,不同時間、不同情境下,彈性變動、複合式的空間運用,重新安排的衛浴設計,讓整體空間動線簡潔、俐落。7坪大的小套房,可以擁有包含浴缸、可泡澡的全套衛浴設備,有工作的書房,休息、娛樂、朋友來訪聊天聚會的客廳,有可以下廚煮飯的廚房,大容量的衣櫥,以及標準大小的雙人床舖。

聯絡初時

Initial Time Interior Design white logo

每個人都有過往的時間,我的現在是由過去所構成。從昨日積累到今天,展望未來的光景
還記得年少過往所許下的約定嗎?
讓我們攜手尋回初心,共同實現未來的想像
生命將不只是生存,更是可以充滿回憶及感動


Email住址會使用灌水程式保護機制。你需要啟動Javascript才能觀看它 Email住址會使用灌水程式保護機制。你需要啟動Javascript才能觀看它

Tel   0980-221-373

Line   @initial-time

location point   238-75 新北市樹林區中正路637號15樓之2

© 初時. All rights reserved. Powered by 佳凱資訊.